Copyright 2009 TuscanWood. All rights reserved
|
___A proven name in wood industry
|
The layout of your kitchen—where you place your appliances, your countertops, and your storage—will determine how
cook-friendly your kitchen is. Ask yourself before you set up the layout:
• Will I have to walk far to get water to top off a pot on the stove?
• Will I have enough space to slice, dice, chop, and otherwise prepare meals?
• Will I have room to store the olive oil near the stove or will I have to go across the room to get it?
• Will two or more cooks be able to work comfortably in the space without constantly bumping into each other?
• Will I be able to easily rinse dishes and load them into the dishwasher?
• Do I prefer a range or a separate cooktop and oven?
• Do I need a prep sink and a cleanup sink?
• Do I need an eating area in the kitchen?
Most American kitchens are based on one of the four basic designs:

L-Shape Kitchen
This is the most popular kitchen design because it is
functional and efficient and works well in limited spaces.
Corner cabinets, like base cabinet with Lazy Susan,
blind corner cabinet or blind wall cabinet, combined with
a variety of helpful accessories, have added to the
overall usefulness of this design.
Corridor Kitchen
This design is very efficient. However, because of its
narrowness, traffic can snarl when appliance or cabinet
doors are open, or when several people are in the
kitchen.
-------------------------------------------------------------------------------------------------------------------------------------------------------------------------------------------
|
|
|
|
|
|
|
|
|
|
|
|
|
|
|
|
|
|
|
|
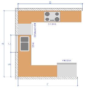
U-Shape Kitchen
This is also a popular design. The compact and efficient
layout can accommodate traffic without disrupting
workflow.
--------------------------------------------------------------------------------------------
|
|
|
|
|
|
|
|
|
|
|
|
|
|
|
|
|
|
|
|
|
|
|
|
|
|
|
|
|
|
|
Straight Kitchen
This design features all work areas along a single wall.
This is not considered an efficient kitchen design.
Additions
If space allows, an island or peninsula can be an exciting
addition. These dramatically change the dynamics of
your kitchen by enhancing the work and traffic patterns.
The overhang of the countertop, typically 6"-10", is
popular, so as to form a bar.